Generelle krav til tegninger
Det viktigste er at tegningene viser tydelig hva du skal gjøre, enten det er noe nytt som skal bygges eller endringer på en eksisterende bygning.
Målestokk (størrelsesforhold)
For at vi skal kunne lese tegningene riktig, må de være laget i fast målestokk:
- Plantegninger, snittegninger og fasadetegninger: 1:100
- Situasjonsplan: 1:500. Bruk gjerne farger eller skravur for å vise hvilken bygning søknaden gjelder.
- Utomhusplan: 1:200. Farger kan brukes for å vise hvordan krav i kommuneplanen er oppfylt.
- Overvannshåndteringsplan: 1:200 eller 1:500. Se egne krav på siden om overvannshåndtering.
Hvordan tegningene skal lages
- Tegningene må være tydelige, med rette streker (ikke frihånd).
- Viktige mål skal være påført.
- Format: A4 eller A3. Bruker du et annet format, må målestokken oppgis slik at tegningen kan forminskes til A3.
- Sender du inn digitalt, skal hver tegning ligge i egen fil (PDF eller JPG).
Navn på filer og tegninger
- Filnavnet skal forklare hva tegningen viser, for eksempel Fasade nord eller 1. etasje.
- Filnavn og navn på selve tegningen skal være like.
- Tegningene skal ha et tittelfelt med:
- type tegning
- målestokk
- dato
- adresse
- ansvarlig foretak (hvis aktuelt)
Eksempel på tittelfelt

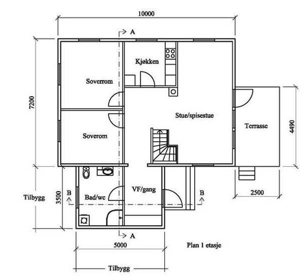
Plantegninger (bygningen sett ovenfra)
Plantegninger skal vise:
- alle etasjer, med etasjenummer
- rominndeling og hva rommene brukes til (for eksempel stue, kjøkken, bad)
- bygningens yttergrenser og eventuelle tilbygg
- nordpil (som viser himmelretning)
- hvor snitt er tatt (hvis du har snittegning)
- egne bruksenheter, hvis bygget har flere boliger
Gjelder søknaden innvendige endringer, må du sende inn plantegning av hele etasjen der endringen skjer.
Eksempel på plantegning

Illustrasjon: Nedre Eiker
Fasadetegning (bygningen sett utenfra)
Fasadetegninger skal vise:
- hele bygningen
- alle sider av bygget (nord, sør, øst og vest)
- bygningens utseende og materialer
- eksisterende og nytt terreng, hvis terrenget endres
Ved tilbygg eller påbygg må du sende inn alle fasader der endringen er synlig. Endringer kan gjerne markeres med farge eller tykkere streker.
Eksempel på fasadetegning

Illustrasjon: Oslo kommune

Illustrasjon: Oslo kommune
Snittegning (bygningen sett i gjennomskjæring)
Snittegninger skal vise:
- romhøyde
- vegger og tak, med riktig tykkelse
- takvinkel (i grader)
- møne- og gesimshøyde over ferdig planert terreng
- høyder (kotehøyder), for eksempel på gulv eller tak
I noen enkle saker, som mindre tilbygg, er det ikke alltid nødvendig å vise kotehøyder.
Eksempel på snittegning

Illustrasjon: Oslo kommune

Illustrasjon: Oslo kommune
Lurer du på noe?
Er du usikker på hvilke tegninger du trenger, eller hvordan de skal se ut? Ta gjerne kontakt med oss før du sender søknaden – det kan spare deg for både tid og ekstra runder.